lokal na wynajem - Szczecin, Śródmieście-Centrum

numer oferty: 436973

Cena: 4 000

Symbol SWO
436973
Rodzaj nieruchomości
LOKAL
Rodzaj rynku
WTÓRNY
Cena cena w innych walutach
4 000 PLN
Cena za m2
20 PLN
Województwo
ZACHODNIOPOMORSKIE
Miejscowość
Szczecin
Dzielnica - osiedle
Śródmieście-Centrum
Powierzchnia całkowita
204, 00 m²
Rodzaj budynku
BIUROWIEC
Rok budowy
1985
Winda w nieruchomości
Podłączony gaz
Witryna
Sieć LAN

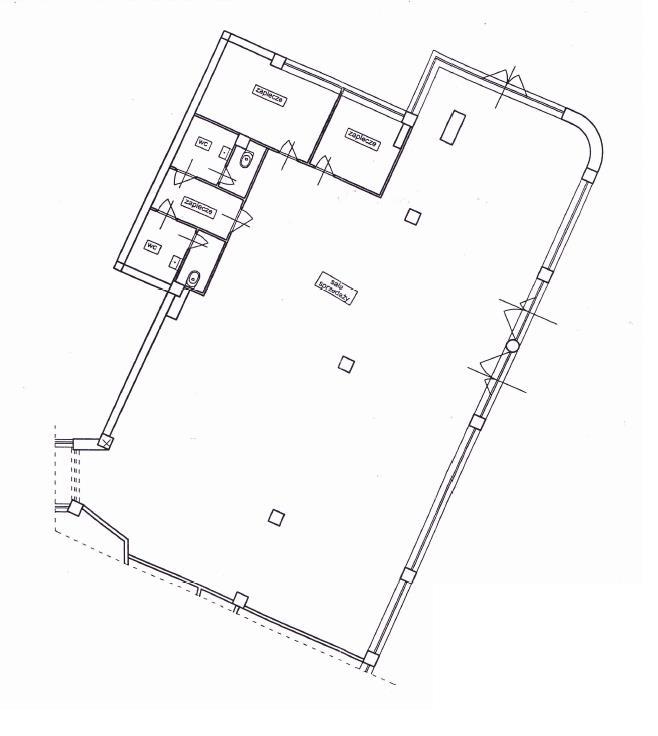
Wynajem lokal 204 m2

Do wynajęcia lokal handlowo - usługowy o powierzchni 204 m2 położny na parterze budynku mieszkalno - usługowego.

Szerokie witryny, dwa wejścia z poziomu 0 (bez schodków).

Powierzchnia najmu nadaje się na każdą działalność: biurową, usługową, handlową, itp.

Na parterze znajduje się:
- recepcja,
- 3 gabinety (13/13/13 m2),
- sala konferencyjna (34 m2),
- zaplecze socjalne,
- pomieszczenie socjalne,
- WC.

Lokal z dużym potencjałem, posiada dodatkową przestrzeń w postaci antresoli o powierzchni 44 m2, o pełnej wysokości i nośności.

Ogrzewanie i ciepła woda z sieci miejskiej. W lokalu rozprowadzona jest instalacja alarmowa.

Czynsz do zarządcy w wysokości ok. 2.800 zł zawiera zaliczki na ciepłą i zimną wodę, odprowadzenie ścieków, ogrzewanie, wywóz śmieci.
Dodatkowo płatna energia elektryczna według zużycia.

Wymagana kaucja w wysokości 6000 zł.

Lokalizacja w żółtej strefie SPP, duża liczba miejsc parkingowych w okolicy.

Treść niniejszego ogłoszenia nie stanowi oferty handlowej w rozumieniu Kodeksu Cywilnego. Treść ma charakter informacyjny i zalecamy ich osobistą weryfikację. Kontaktując się z biurem Klient wyraża zgodę na przetwarzanie danych osobowych zgodnie z przepisami ustawy z dnia 29 sierpnia 1997 roku o ochronie danych osobowych / Dz.U.Nr. 133 poz. 883/. Klientowi przysługuje prawo do wglądu do swoich danych osobowych i ich aktualizacji.

Zapytaj o ofertę